Boligen
Der er 2 boenheder på Grønningen, Engbo og Skovbo, med 12 lejligheder i hver. Til hver boenhed er der en fælles gårdhave.
Ofte stillede spørgsmål
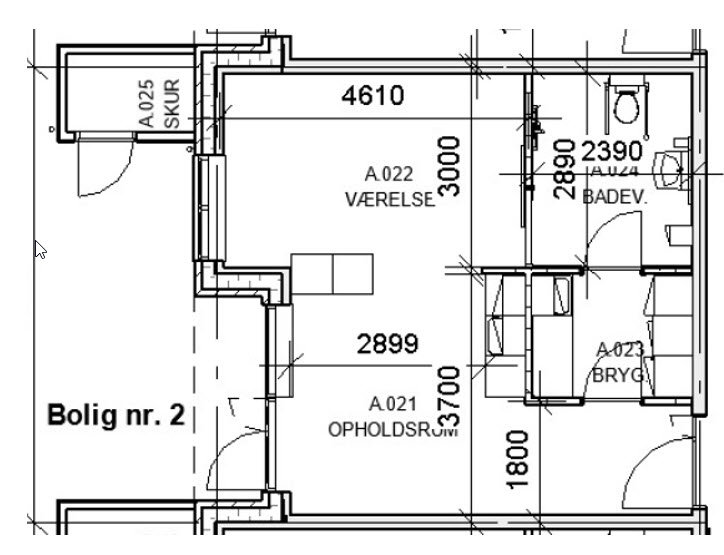
Engbo består af 12 lejligheder, hvor der til hver lejlighed er terrasse og et udhus. Lejlighederne har lille bryggers med egen vaskesøjle. Der er et fælles køkken og fælles opholdsstue, hvor måltider kan indtages i fællesskab.
Skovbo er indrettet som Engbo med lige så mange lejligheder.
Har man sagt ja til en bolig, får man tilsendt en lejekontrakt fra Aabenraa kommunes boligadministration, der er ansvarlig for lejekontrakt, huslejeopkrævning og boligsyn ved ind- og udflytning.
Spørgsmål vedrørende økonomi og lejekontrakt bedes rettet til:
Aabenraa Kommune
Boligkontoret
Tlf.: 7376 6140
Telefonen er åben i tidsrummet mellem kl. 9-10 og 13-14
Mail: boligkontoret@aabenraa.dk

TV og telefon: Beboeren og/eller dennes familie skal selv sørge for tilslutning af TV og evt. telefon. TV tilslutningen på Grønningen er Stofa. Den lille tv-pakke medfølger i huslejen